Reconstrucción del Patio de Honor · 2019
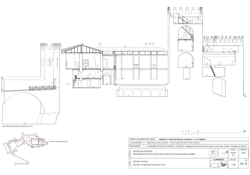
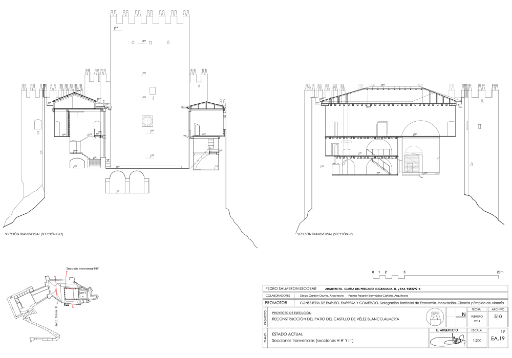
Sobre el cerro de Vélez-Blanco se alza uno de los conjuntos monumentales más singulares de Andalucía, cuya historia se remonta a la época árabe. Los vestigios de tapial de la antigua alcazaba, con su aljibe y mezquita, dan testimonio de esas primeras construcciones defensivas.
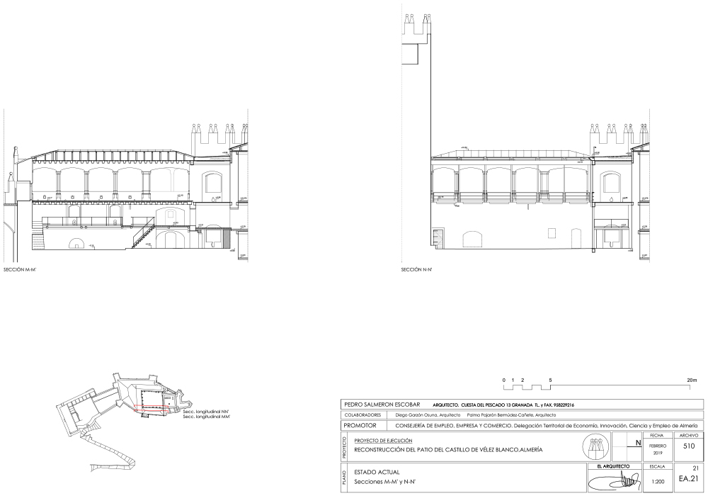
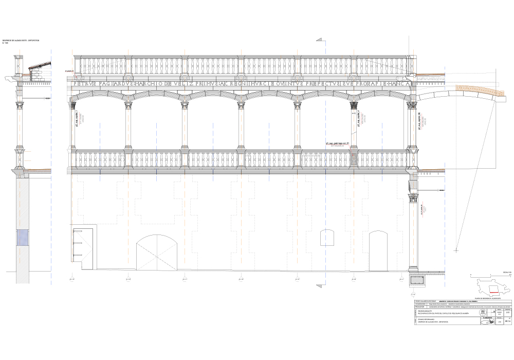
Tras la reconquista, los Reyes Católicos nombraron Marqués de los Vélez a Don Pedro Fajardo Chacón. En 1505, este noble estableció su residencia en Vélez-Blanco y un año después emprendió la construcción de un ambicioso proyecto: un palacio renacentista dentro de las murallas del castillo medieval.





































