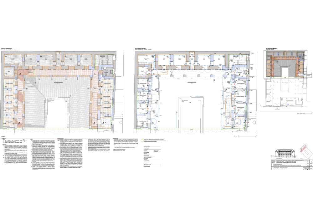
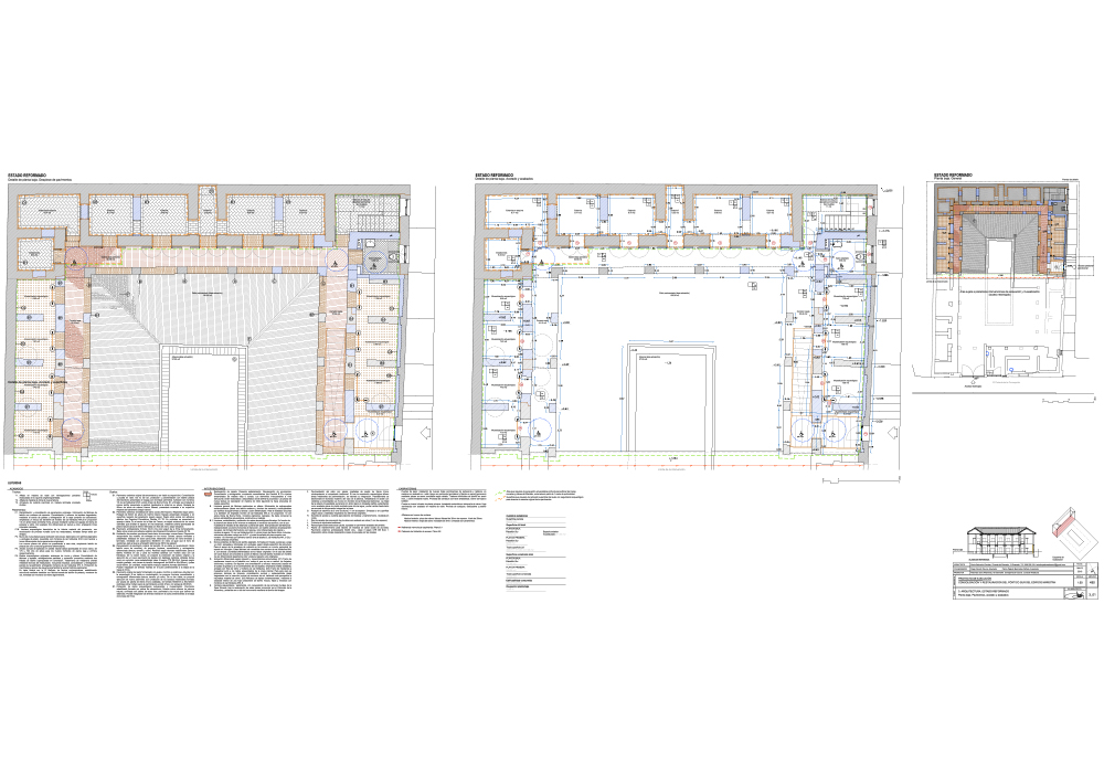
Consolidación y restauración del pórtico sur (2018-2022)
En el corazón del bajo Albaicín, frente al Monasterio de la Concepción, se alzan los restos del Maristán, testimonio excepcional de la Granada nazarí fundado en 1367 por Muhammad V y único hospital de Al-Ándalus del que se dispone de información suficiente. Su localización, próxima a otros vestigios medievales como el Bañuelo o la Casa de Zafra, revela su importancia en el entramado urbano histórico.
Tras la conquista cristiana, el edificio inmueble múltiples transformaciones: Casa de la Moneda, almacén de vinos, casa vecinal, etc. Cada nuevo uso modificó profundamente su estructura original alterando su configuración medieval.



































