La Torre de la Catedral de Granada. Entre el cielo y la historia

FOTOGRAFÍAS:Archivo Pedro Salmerón / Diego Garzón Osuna

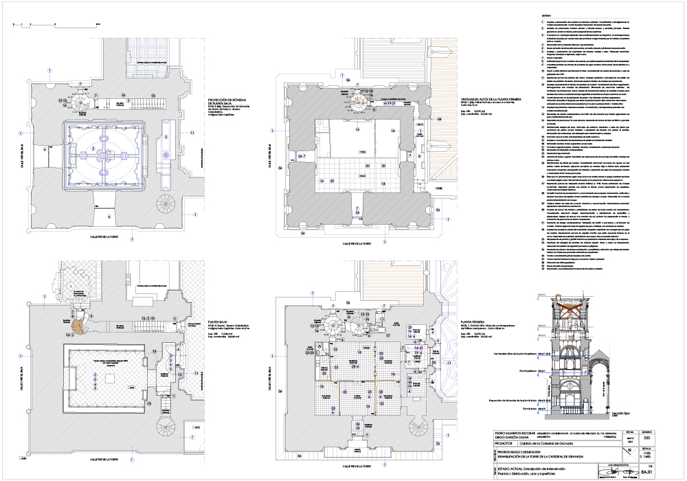
Rehabilitación de la Torre de la Catedral de Granada - 2020-2021

La torre de la Catedral de Granada es uno de los elementos más singulares del patrimonio granadino, permaneciendo inconclusa durante más de cuatro siglos. Con sus 56 metros actuales, alcanza poco más de la mitad de los 80 metros proyectados originalmente, siendo la única de las dos torres contempladas que llegó a construirse.

La construcción comenzó en el siglo XVI bajo Diego de Siloe, quien falleció en 1563 cuando apenas arrancaba. Juan de Maeda continuó los trabajos, elevando el primer cuerpo con decoración dórica y el arranque del segundo, con el arco de triunfo como elemento compositivo. Tras la paralización por el levantamiento morisco, Juan de Orea prosiguió el segundo cuerpo con pilastras jónicas, siendo sustituido por Ambrosio de Vico, quien completó este nivel y construyó dos más: el tercero, con grandes columnas corintias; y el cuarto, octogonal destinado a las campanas.

Hacia 1590, la estructura mostró signos alarmantes de inestabilidad. Un asiento de cimentación en el ángulo suroeste, provocado por las importantes cargas y la elección inadecuada del estrato para cimentar, generó grietas que obligaron a una intervención de emergencia en 1593. Juan de Minjares y Juan de la Vega diagnosticaron la situación, ejecutando una ambiciosa consolidación que supuso desmontar el cuerpo octogonal, cegar huecos, macizar escaleras y recalzar la cimentación mediante bataches. Los trabajos concluyeron en 1602.

 

 

La expectativa de reconstruir el cuerpo perdido retrasó la cubierta definitiva hasta 1644. La solución adoptada, claramente provisional, ha generado graves problemas de infiltraciones a lo largo del tiempo.

La intervención aborda una restauración integral: reestructuración de la cubierta con habilitación de mirador, consolidación de materiales pétreos, reparación de elementos estructurales como alfarjes, y restauración de cornisas y escaleras, respetando la función museística actual de la planta baja.

Ficha del proyecto:

Resumen de la intervención

Rehabilitación de la Torre de la Catedral de Granada (2020-2021)

Superficies

770,31m²

Financiación

2.444.761,54 €

Empresas adjudicatarias

Dávila RM. Restauración y Rehabilitación

Proyecto

Pedro Salmerón Escobar. Arquitecto

Diego Garzón Osuna. Arquitecto

Dirección de las obras

Diego Garzón Osuna. Arquitecto

Dirección de la ejecución de obra
María López Olid. Arquitecta técnica del Arzobispado de Granada

Investigación asociada

Asesoría en restauración
Lola Blanca López. Restauradora del Arzobispado de Granada

Alejo de la Torre Reyes, Arquitecto.

Daniel Moreno Hernández y Rafael Gálvez González. Ingenieros técnicos industriales

Francisco Campos Fernández. Arquitecto técnico

Rosa María Pérez de la Torre, Historiadora del Arte

Promotor

Arzobispado de Granada

Fotografía

Archivo Pedro Salmerón / Diego Garzón Osuna