Cubiertas del Mexuar. Alhambra

FOTOGRAFÍAS:Archivo Pedro Salmerón / Diego Garzón Osuna

Restauración de cubiertas del Mexuar y los Palacios nazaríes en la Alhambra. 2020-2021

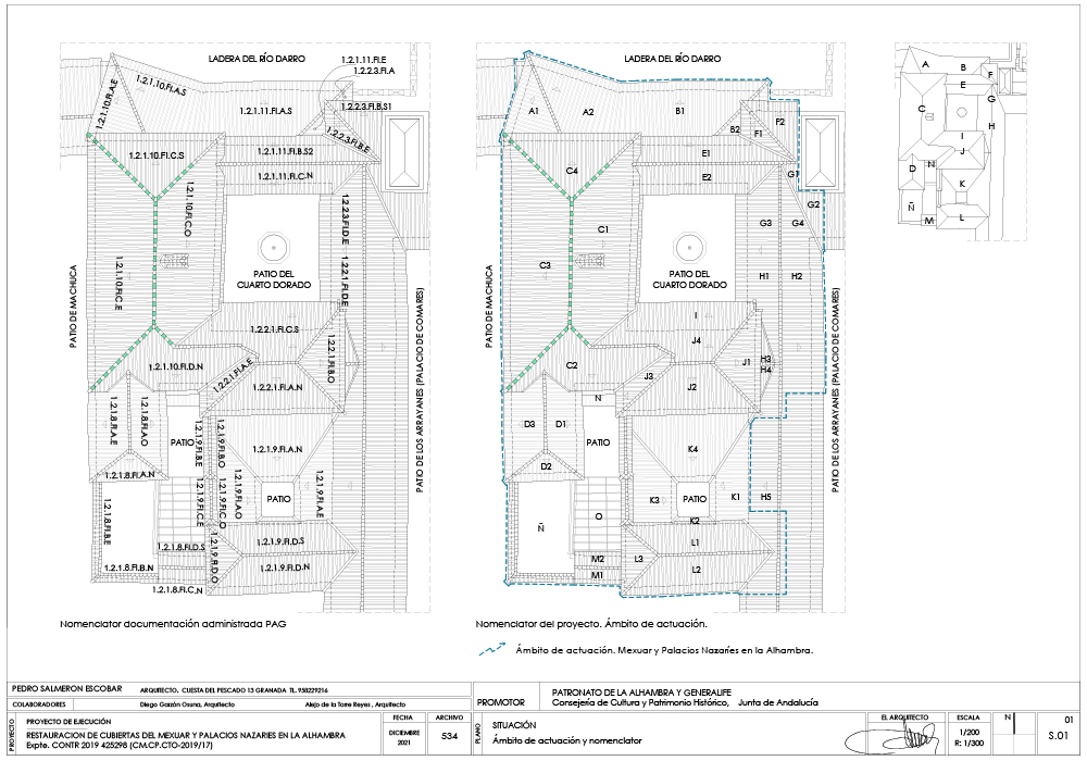
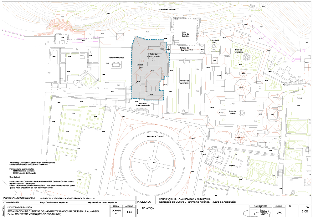
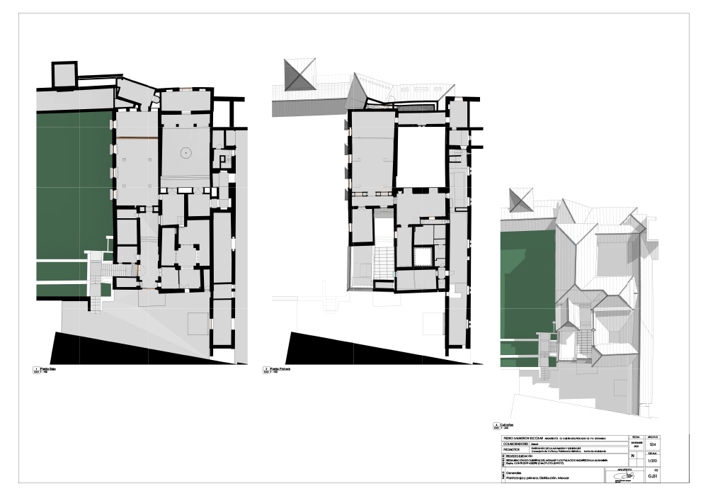
La intervención proyectada abarca uno de los conjuntos arquitectónicos más emblemáticos de la Alhambra: el Mexuar, el Cuarto Dorado y la Portada del Palacio de Comares, espacios que constituían el corazón administrativo y ceremonial del reino nazarí de Granada.

En la Alhambra medieval, dichas estancias albergaban la administración de justicia y la burocracia del reino, sirviendo de antesala al Mexuar o Sala del Consejo, donde se encontraba el trono de los primeros sultanes. La Portada del Palacio de Comares, promovida por Muhammad V en 1370 para conmemorar la conquista de Algeciras, representa una obra maestra de la decoración nazarí con su espectacular alero volado de canes tallados.

 

La configuración actual de estos edificios es resultado de múltiples intervenciones históricas. Los castellanos ampliaron el Mexuar en altura, creando una capilla y espacios residenciales. Posteriormente, Leopoldo Torres Balbás realizó una intervención fundamental en el primer tercio del siglo XX, eliminando los recrecidos cristianos y devolviendo al conjunto una volumetría más armónica, deprimiendo las cubiertas a una posición más estable. El arquitecto Francisco Prieto-Moreno continuó esta labor de racionalización en los años sesenta, eliminando el antepórtico del Cuarto Dorado y reduciendo la volumetría del conjunto.

 

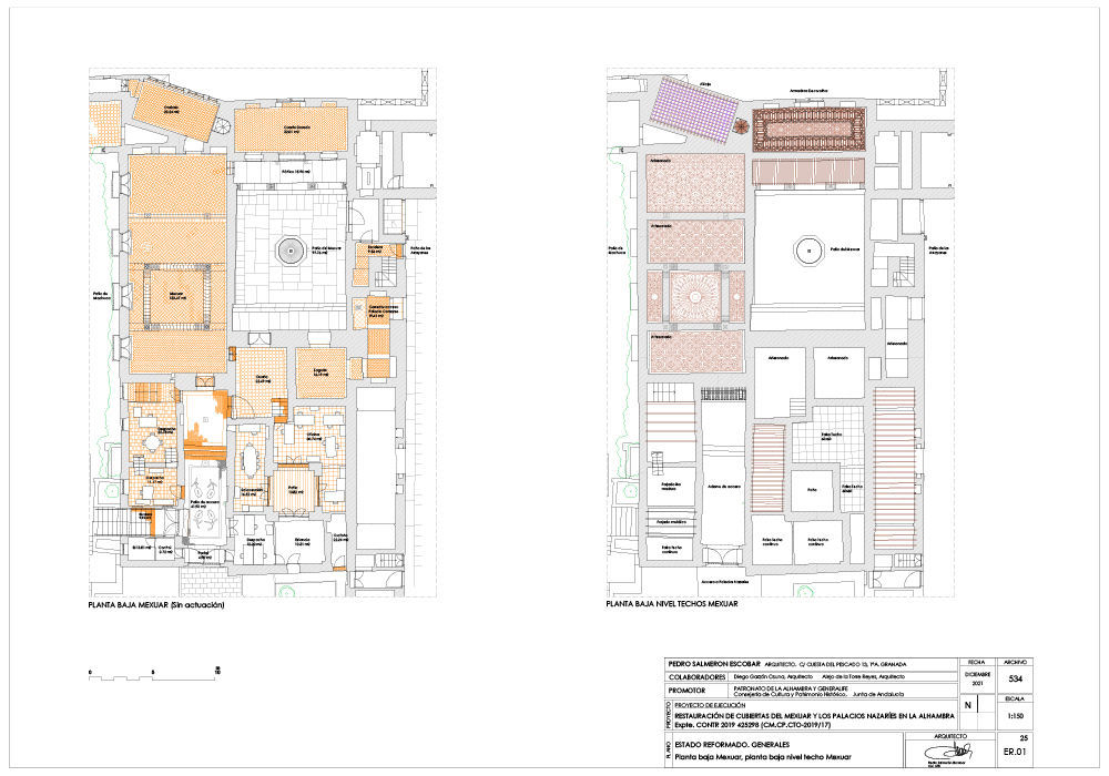
Desde 1946 hasta 1995, estos espacios albergaron el Museo de la Alhambra, ocupando fundamentalmente las plantas superiores del Mexuar y Cuarto Dorado. Esta instalación museística, construida con recursos limitados de la posguerra, presenta graves problemas de conservación en sus cubiertas.

 

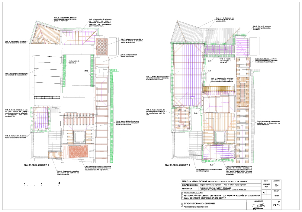
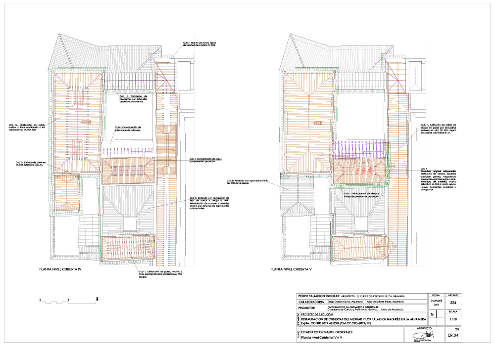
El proyecto aborda la restauración de múltiples tipologías de cubiertas, desde armaduras de par y picadero hasta alfarjes de madera, todas con problemas estructurales debidos a deterioro por agentes biológicos, uso de maderas inadecuadas en etapas con una economía muy ajustada, solicitaciones límite, deformaciones, añadidos de armaduras con nuevos materiales y reposicionamiento de tensores de acero para contrarrestar empujes horizontales. Su complejidad radica en intervenir sobre un conjunto patrimonial excepcional, manteniendo activa la visita turística y protegiendo elementos tan delicados como el pavimento de mármol de Macael del Patio del Cuarto Dorado y los excepcionales aleros nazaríes de canes tallados, verdaderas joyas de la ebanistería andalusí.

Ficha del proyecto:

Resumen de la intervención

Restauración de cubiertas del Mexuar y los Palacios nazaríes en la Alhambra (2021)

Superficies

724,95 m²

Financiación

2.139.221,40 €

Proyecto

Pedro Salmerón Escobar. Arquitecto

Diego Garzón Osuna. Arquitecto

Dirección de las obras

Diego Garzón Osuna. Arquitecto

Investigación asociada

Arquitectura
Alejo de la Torre Reyes, Arquitecto.

Ingeniería. Instalaciones
INGECART S.C.A. Estudio de ingeniería.
Daniel Moreno Hernández y Rafael Gálvez González. Ingenieros técnicos industriales

Mediciones y presupuesto
Francisco Campos Fernández. Arquitecto técnico

Fotogrametría
José Manuel Moreno Domínguez. Arquitecto técnico
Juan Castro Osuna. Ingeniero técnico

Arqueología
José Ignacio Murillo Fragero

Biología (maderas)
Inés Martín Sánchez

Restauración
José María Rodríguez–Acosta Márquez

Estudio histórico-documental
Rosa María Pérez de la Torre, Historiadora del Arte

Promotor

Patronato de la Alhambra y Generalife

Fotografía

Archivo Pedro Salmerón / Diego Garzón Osuna