Una vida entre andamios

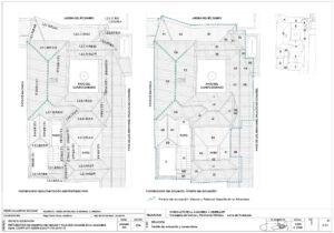
Cubiertas_del_Mexuar_Planimetría_02

Pedro Salmerón | | 26-09-2025

Archivos