Una vida entre andamios

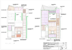
Cubiertas_del_Mexuar_Planimetría_11

Pedro Salmerón | | 26-09-2025

Archivos