Una vida entre andamios

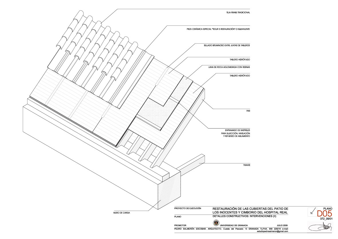
DETALLE

Pedro Salmerón | | 15-11-2017

Archivos